Church Street, Atherton, Manchester, M46 9DE

Availability:

Let Agreed

Price:

£700 pcm

Property Type:

Commercial

Property Summary

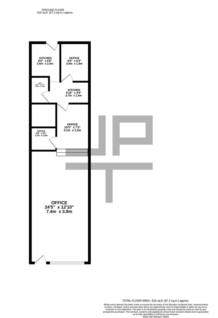
JonesPottsTaylor are pleased to present TO LET this self-contained COMMERCIAL ground floor premises. Situated on a prominent main road position in Atherton town centre, close to major network and transport links. This unit comprises of; entrance into a large open space/office with steps rising to an additional off centre area, two separate side rooms/offices, a split section kitchen and one W.C facility. Externally to the rear is an enclosed shared yard and both the front and rear entrances are secured by an electric roller shutter door.
The office space has most recently been used as an administration office and previously a hairdressers.
Viewings are highly recommended and will be required and under a viewing schedule.
  • Type: Commercial
  • Availability: Let Agreed

Property Features

  • Office Space
  • Within Atherton Town Centre
  • Internally Multiple Versatile Rooms
  • Close Proximity Of Major Network And Transport Links - Security Electric Roller Shutter Doors
  • Access From Both Front & Rear
  • Security Electric Roller Shutter Doors

Call Property Agent

  • Make Enquiry
  • Floorplan
  • View Brochure
  • View EPC

Property Location

Church Street, Atherton, Manchester, M46 9DE