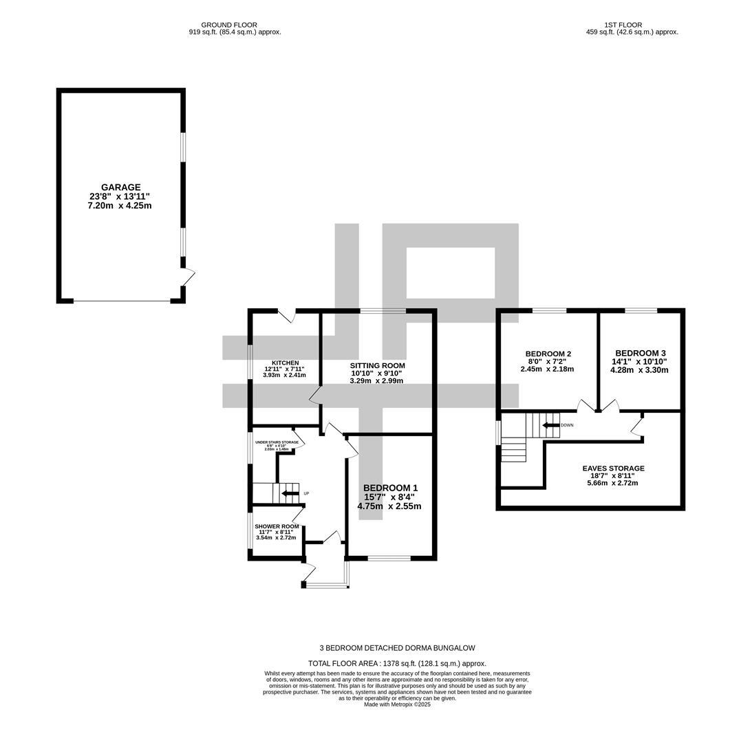
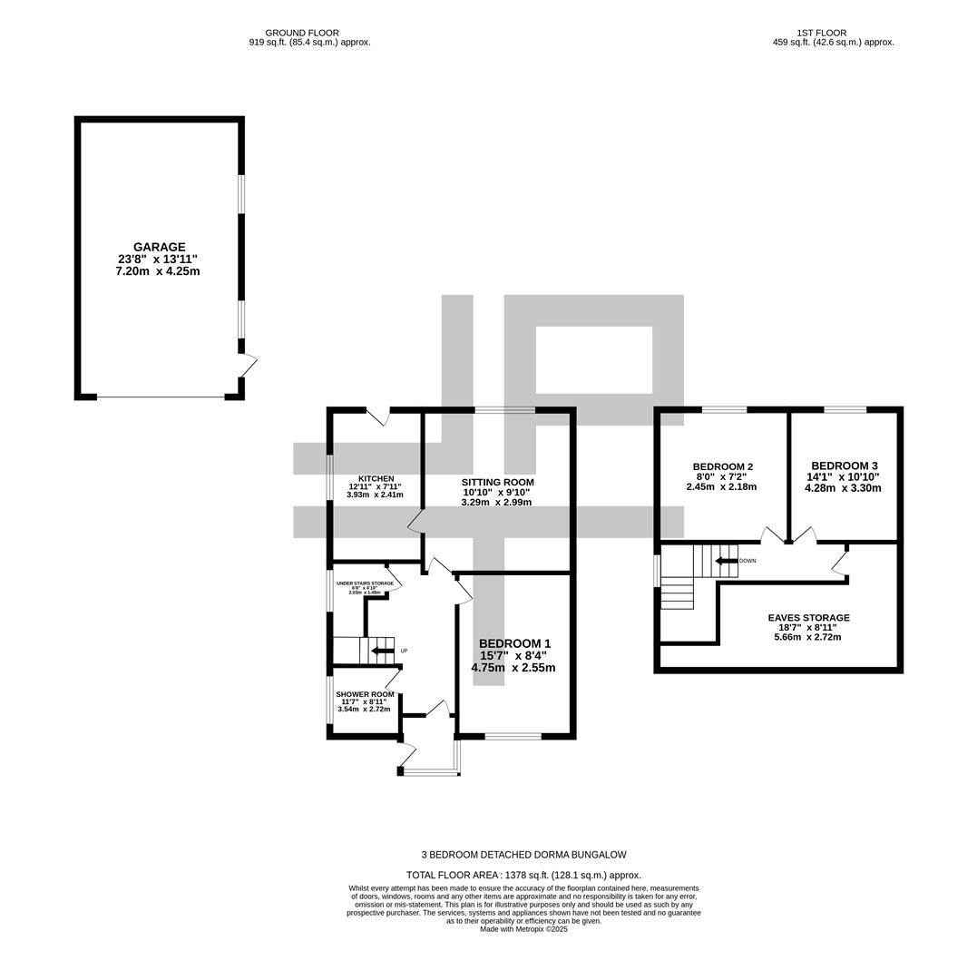
JonesPottsTaylor are delighted to present FOR SALE this three-bedroom semi-detached dormer bungalow. Situated in a popular residential location in Hindley, close to transport and network links, schools, shops and amenities. The property briefly comprises of; entrance porch, hallway, sitting room, kitchen, master bedroom with fitted wardrobes and a family bathroom with three piece suite. To the first floor are a further two double bedrooms. Outside to the front is an enclosed garden and driveway which leads to a detached garage, whilst to the rear is an attractive low maintenance landscaped garden. Viewings are highly recommended to fully appreciate the potential this family home is able to offer.
We use cookies to ensure that we give you the best experience on our website. If you continue to use this site we will assume that you are happy with it.