Millbrook Avenue, Atherton, Manchester, M46 9LL

Availability:

For Sale

Price:

£300,000

Property Type:

Property Summary

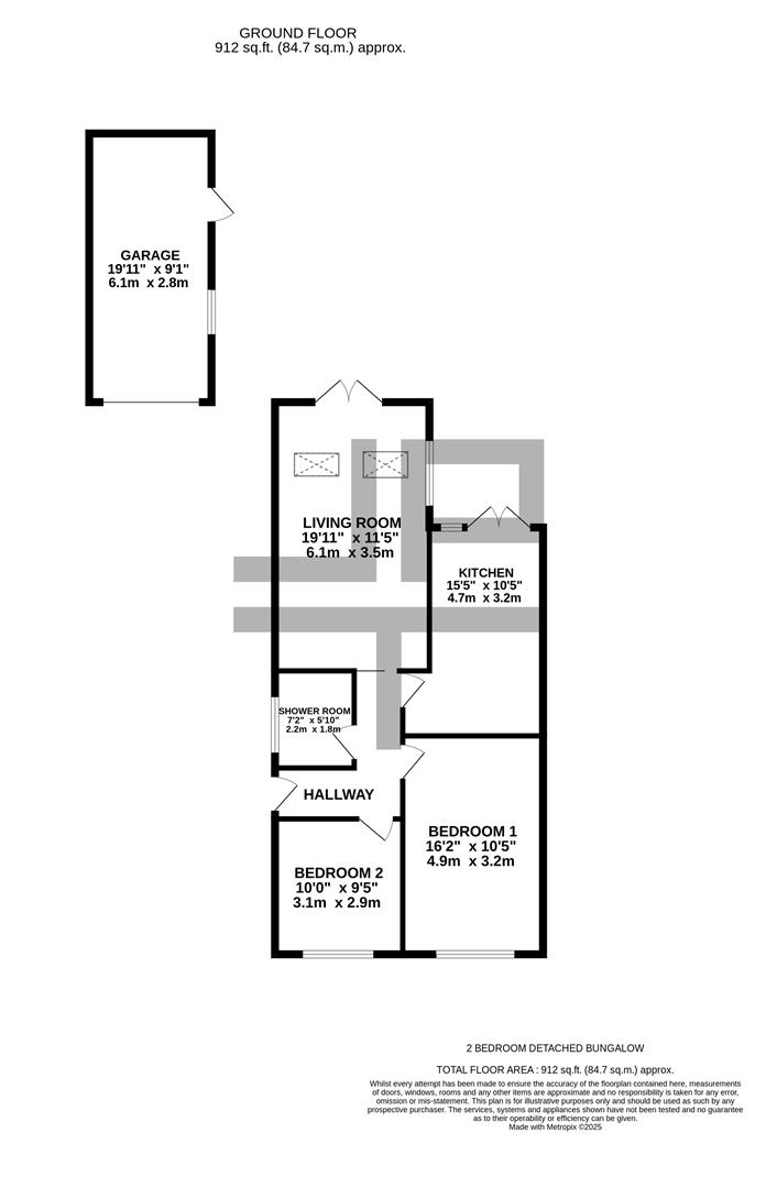
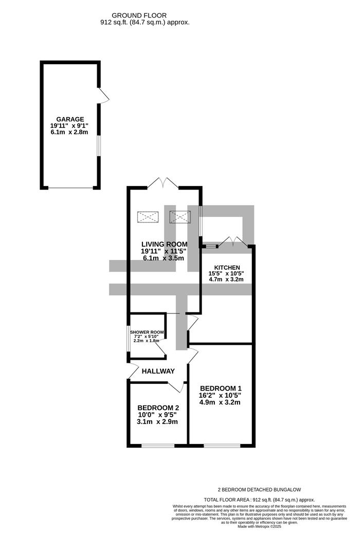
JonesPottsTaylor are delighted to present FOR SALE this well presented, extended two bedroom, detached true bungalow. Situated in a sought after residential location in Atherton, close to transport and network links, schools, shops and amenities. The property briefly comprises of; entrance hallway, Living room / dining room featuring French doors leading to the rear garden, a separate kitchen, two double bedrooms, and a further shower room with three piece suite. Outside to the front is a large open well maintained garden, to the rear sits a private enclosed low maintenance garden, whilst to the side is a driveway which leads to a detached garage.
Viewings for this property are a must to appreciate its sought after location and locality to transport / network links.
  • Availability: For Sale
  • Bedrooms: 2
  • Bathrooms: 1
  • Reception Rooms: 1
  • Council Tax Band: C
  • Tenure: Leasehold
  • Leasehold Remaining: 846 years
  • Ground Rent: £30

Property Features

  • Sought After Cul-De-Sac Location
  • Detached Garage & Driveway
  • New Roof
  • South Facing Garden
  • Extended Property
  • Gas Central Heating & Double Glazed PVC Windows

Call Property Agent

01942368600
  • Make Enquiry
  • Floorplan
  • View Brochure
  • View EPC

Property Location

Millbrook Avenue, Atherton, Manchester, M46 9LL