Ruth Street, Newsome, Huddersfield, HD4 6JF

Availability:

Price:

£1,583 pcm

Property Type:

Property Summary

JonesPottsTaylor are pleased to present TO LET these TWO separate COMMERCIAL light industrial units, within the Newsome Mill Complex, approximately 1 mile to the south of Huddersfield Town centre. These units benefit from having the flexibility to be joined as one single unit.
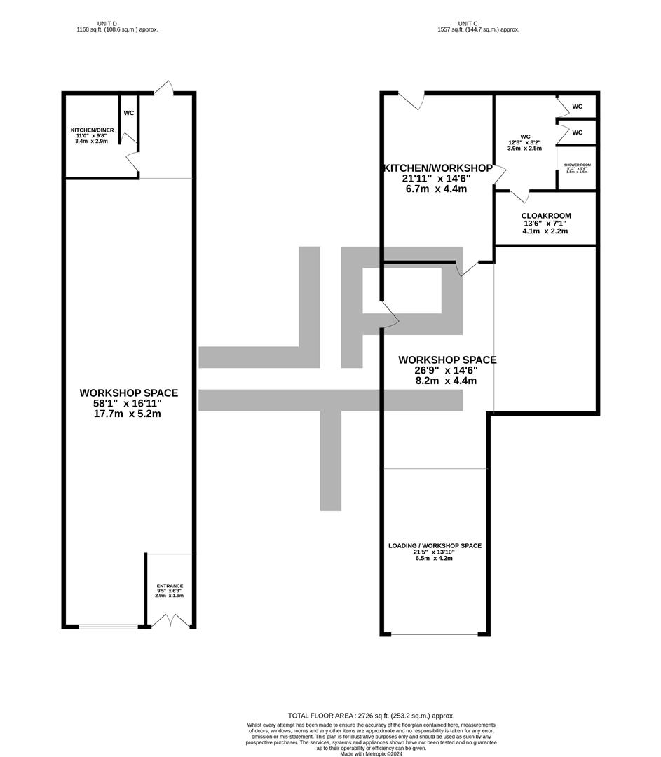
UNIT C - 1557 sqft - £11,000PA
This ground floor premises comprises of entrance through a roller protected pedestrian door or a roller drive-in loading door, workshop / warehouse / office space including kitchen, segregated toilets, shower room. Car parking is on-street within the vicinity.
UNIT D - 1168 sqft - £9,000PA
This ground floor premises comprises of entrance through a roller protected pedestrian door, workshop / warehouse / office space including kitchen and W.C. Car parking is on-street within the vicinity.
UNIT C/D - 2726 sqft - £19,000PA
Both these ground floor units combined

These units would suit a wide range of businesses including offices, stores, light manufacturing, showroom space and more. (subject to individual requirements and relevant planning consent)

Viewings are highly recommended and will be required and under a viewing schedule.

Property Features

  • Light Industrial Units
  • Versatile Options On Unit Space Available
  • One Mile Proximity To Huddersfield Town Centre
  • Roller Protected Pedestrian Door & Roller Drive-in Loading Door
  • Access From Both Front & Rear
  • Commercial 3 Phase Electricity - 100 Amp Supply

Call Property Agent

  • Make Enquiry
  • Floorplan
  • View Brochure
  • View EPC

Property Location

Ruth Street, Newsome, Huddersfield, HD4 6JF