The Pipers, Lowton, Warrington, WA3 2TJ

Availability:

For Sale

Price:

£325,000

Property Type:

Property Summary

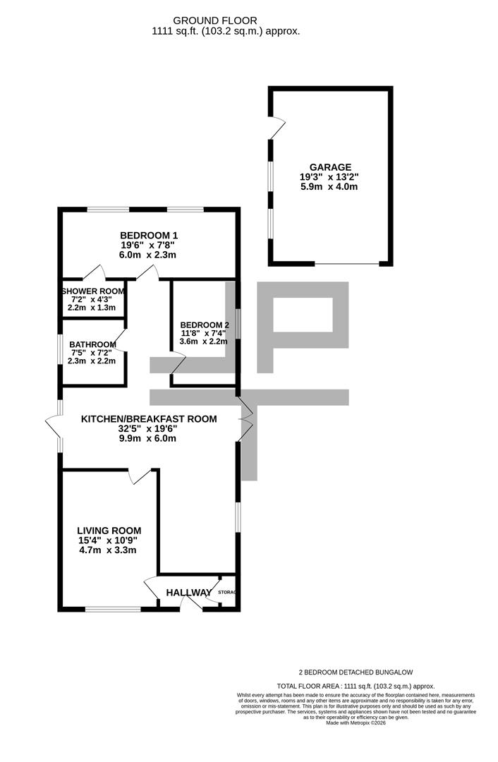
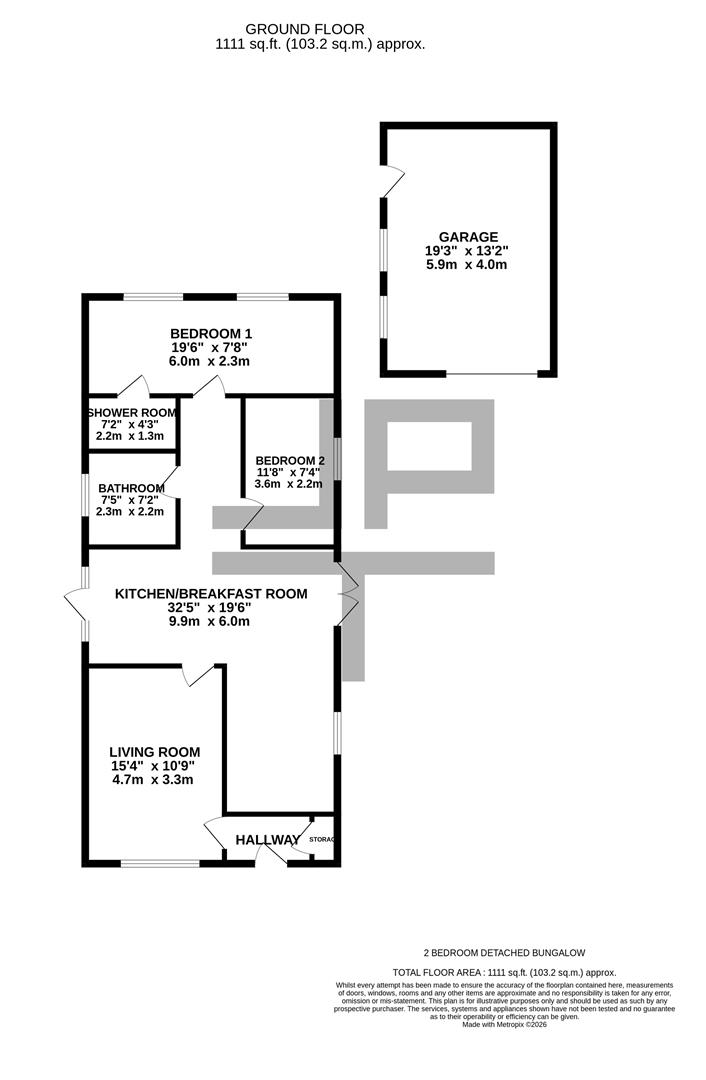
JonesPottsTaylor are delighted to present FOR SALE this two bedroom detached true bungalow. Situated on a corner plot in a sought after residential cul-de-sac in Lowton, close to transport and network links, schools, shops and amenities. The property briefly comprises of; entrance hallway, living room, an open plan kitchen / breakfast and dining room featuring two sets of French doors leading to the driveway and rear garden, two double bedrooms, master benefitting a shower / wet room and a further family bathroom with three piece suite. Outside to the front is a open low maintenance garden with double driveway leading to a detached garage. To the rear sits an enclosed low maintenance garden providing both privacy and space for outdoor enjoyment.
Viewings are highly recommended, as this property is simply ready to enjoy.
  • Availability: For Sale
  • Bedrooms: 2
  • Bathrooms: 2
  • Reception Rooms: 2
  • Council Tax Band: C
  • Tenure: Freehold

Property Features

  • No Onward Chain
  • Sought After Cul De Sac Location
  • Air Conditioning Installation
  • Detached Garage
  • Multiple Vehicle Double Driveway
  • UPVC Double Glazing and Gas Central Heating

Call Property Agent

01942368600
  • Make Enquiry
  • Floorplan
  • View Brochure
  • View EPC

Property Location

The Pipers, Lowton, Warrington, WA3 2TJ